Argüelles

2021

 

Los propietarios de esta casa querían una vivienda céntrica en la que pudiesen convivir vivienda y trabajo.

 

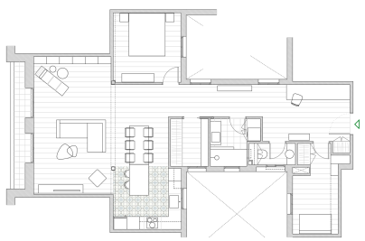
Como primera actuación se decidió crear un gran vestíbulo de entrada donde ubicar una cómoda zona de trabajo que conectase visual y físicamente con la zona exterior de la casa. Con el ensanchamiento del angosto pasillo original se aprovecha al máximo la luz natural de las dos ventanas existentes.

 

Esta área de paso da acceso a distintas piezas de la vivienda desembocando finalmente en la zona exterior en la que se ubica el estar, la zona de trabajo-lectura, el comedor y la cocina. Esta gran estancia, con frente a un balcón corrido, está bañada por la luz natural que recibe desde tres ángulos distintos.

 

Los acabados elegidos, sencillos y neutros, conviven con elementos originales del edificio, de carácter más clásico como pilares estructurales, radiadores y molduras.

 

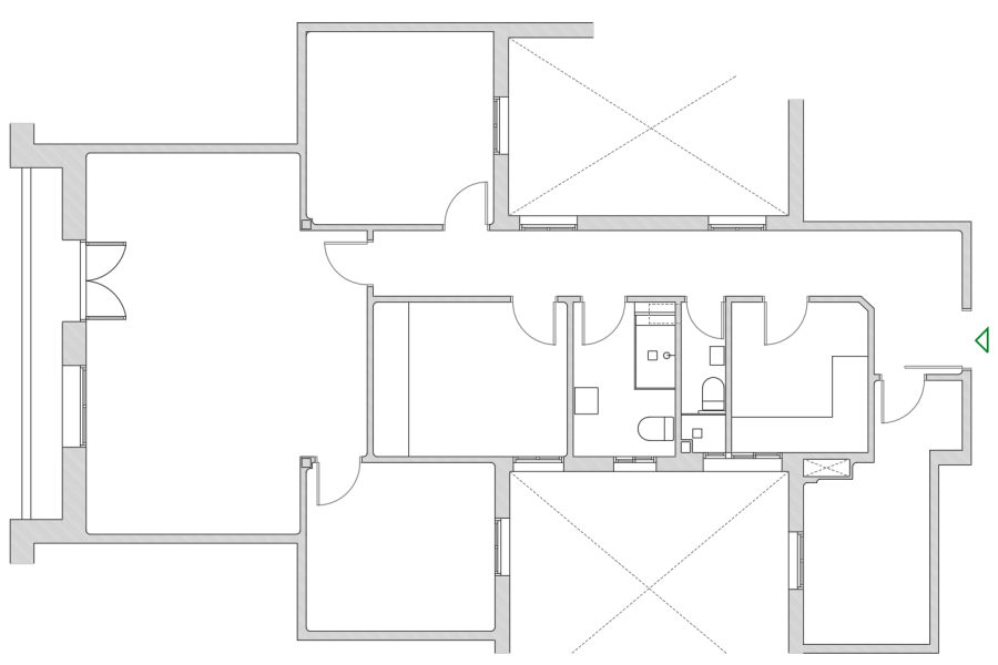
ESTADO ORIGINAL