El Escorial III

2024

 

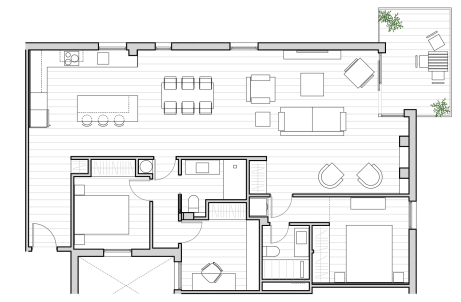
Con la reforma integral de esta vivienda de esquina, donde predominan la luz natural y las vistas, se pretende conseguir espacios de gran funcionalidad donde se aproveche esta ubicación privilegiada para que la zona de día ocupe las dos fachadas exteriores del edificio.

 

Para ello, la cocina se traslada a esta fachada exterior, formando una pieza única con el estar-comedor, que ocupa el resto de fachada hasta llegar a la terraza. A esta pieza se le da continuidad en forma de L, añadiendo un rincón de estar íntimo en torno a la chimenea.

 

Los dormitorios se organizan en dos zonas preservadas de esta zona de día. El principal, exterior y dotado de baño propio, se ubica a continuación del rincón de la chimenea, desde donde se accede; y una puerta situada en la zona de circulación da acceso a la zona interior de la casa, donde se 

ubican los otros dos dormitorios y un baño compartido.

ESTADO ORIGINAL