Sevilla La Nueva

 

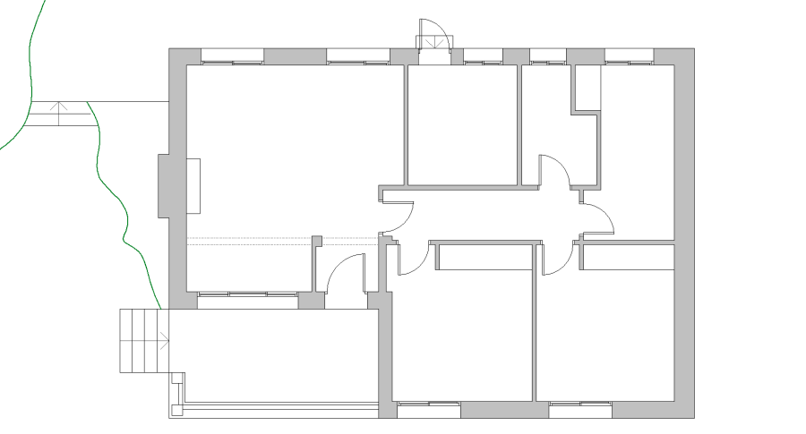
Los dueños de esta casa unifamiliar construida en los años 70 querían renovar la vivienda y adecuar su programa a sus necesidades actuales que eran: añadir un cuarto de baño, ampliar la cocina existente e integrarla con la zona de estar y la creación de una pequeña zona de trabajo. Se quería dar solución además al espacio exterior con la nueva ampliación que se hiciese.

 

Para cumplir con el programa solicitado se incorporó a la vivienda el actual porche de entrada desplazando el acceso a la casa a la fachada lateral. De este modo se unificaba la doble escalinata que existía para acceder al nivel de la casa donde un tramo de escaleras subía al porche y otro conducía al espacio exterior existente en la zona trasera de la casa.

 

Para la nueva entrada a la vivienda se plantea un espacio integrado con el resto del salón comedor, delimitado únicamente por un armario que no llegará hasta el techo de forma que se entienda como parte del resto del espacio. Un cambio de suelos delimita este área haciendo además de transición entre zonas húmedas y secas.

 

En el nuevo espacio incorporado a la vivienda (antiguo porche) será donde se ubique el nuevo cuarto de baño que dará servicio al dormitorio principal. En él se distinguirá una primera zona de tocador independizada de la zona de baño e inodoro.

En este cuerpo se localizará además una pequeña zona de trabajo con acceso directo desde la entrada a la vivienda lo que confiere a este espacio cierta independencia respecto al programa y ritmos de la vivienda.

 

El espacio ocupado actualmente por la cocina se incorpora al salón. La vivienda se amplía en su zona trasera ubicando ahí la nueva cocina y creando un acceso de servicio que da paso al porche. Una parte de la cocina quedá más integrada con el salón. Será ahí donde se ubique la parte más limpia del programa de cocina.

 

El espacio exterior se crea una plataforma que iguala el nivel del acceso con el de la zona trasera. Ahora una única escalinata resuelve este desnivel. El limite entre la vegetación lateral y la parte solada se resuelve de una forma orgánica, mediante jardineras limitadas por traviesas de madera.

 

IDEAS SUGERIDAS

ESTADO ORIGINAL