El Escorial II

2022

 

 

En la reforma de esta casa vacacional, ligada a un montón de recuerdos de infancia, era fundamental aprovechar cada metro cuadrado para dar cabida a una familia numerosa.

 

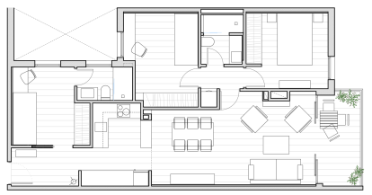
Se decidió crear una única zona de día, que reuniese en el mismo espacio la cocina, el comedor y el salón, desembocando en la terraza y conectando así todo la pieza con el exterior.

 

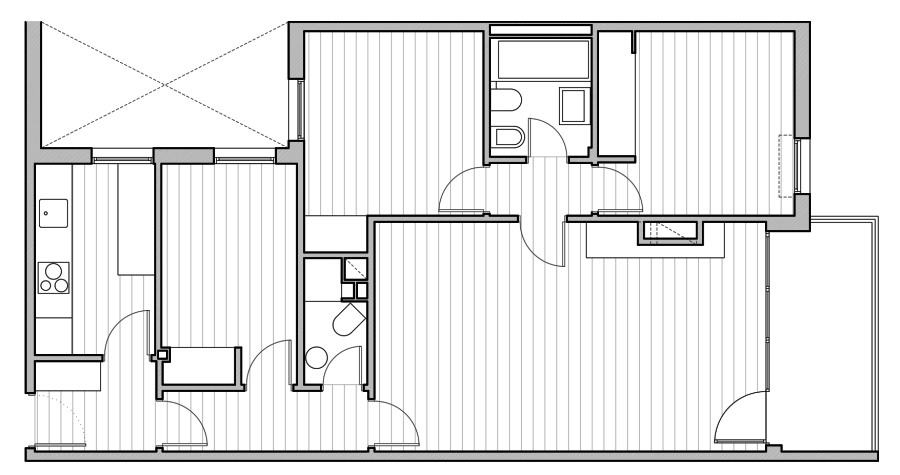
En la entrada a la vivienda, en el espacio liberado por la antigua cocina, se crea un dormitorio con un cuarto de baño completo.

 

Los otros dos dormitorios de la casa, se sitúan en la zona más privada de la vivienda, estructurada en torno a un distribuidor que da también paso a un baño compartido y donde se ubica un armario-lavadero.

ESTADO ORIGINAL