El Escorial

2021

 

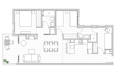
Para los propietarios de esta casa de fin de semana era fundamental conseguir una vivienda funcional, que aprovechase cada metro cuadrado y donde predominase la luz natural.

 

En esta reforma integral se traslada la cocina al centro de la vivienda, integrándola con el salón. La continuidad del pavimento hace que la terraza, situada al final de esta estancia única, se entienda como una prolongación de esta pieza de día (cocina–comedor–estar).

 

El dormitorio principal de la vivienda mantiene su posición de pieza exterior y se le incorpora un cuarto de baño. A los otros dos dormitorios de la vivienda se les da acceso directo a un segundo baño creado en la zona trasera de la cocina.

ESTADO ORIGINAL