Timanfaya

 

 

El objetivo fundamental de la reforma de esta casa era el de aprovechar cada metro cuadrado de la vivienda, prescindiendo de piezas de transición entre estancias, creando espacios más globales y polivalentes.

 

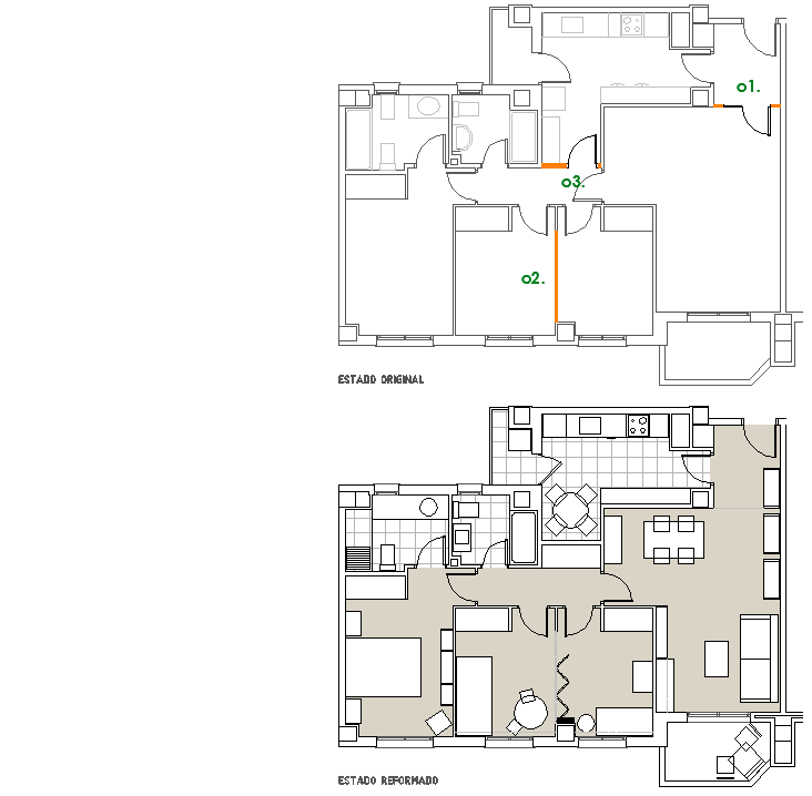
Se acometen para esto tres trabajos:

 

o1. Eliminación del vestíbulo de entrada incorporándolo a un espacio único que será el estar, comedor, lugar de trabajo.

 

o2. Unificación de los dormitorios de niños de forma que el espacio pueda actuar como un gran cuarto de juegos o convertirse en dos dormitorios independientes.

 

o3. Desaparición de la doble comunicación existente en la cocina creando un comedor de diario en la cocina y un armario en el distribuidor.