Montecarmelo

2020

 

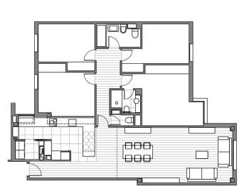
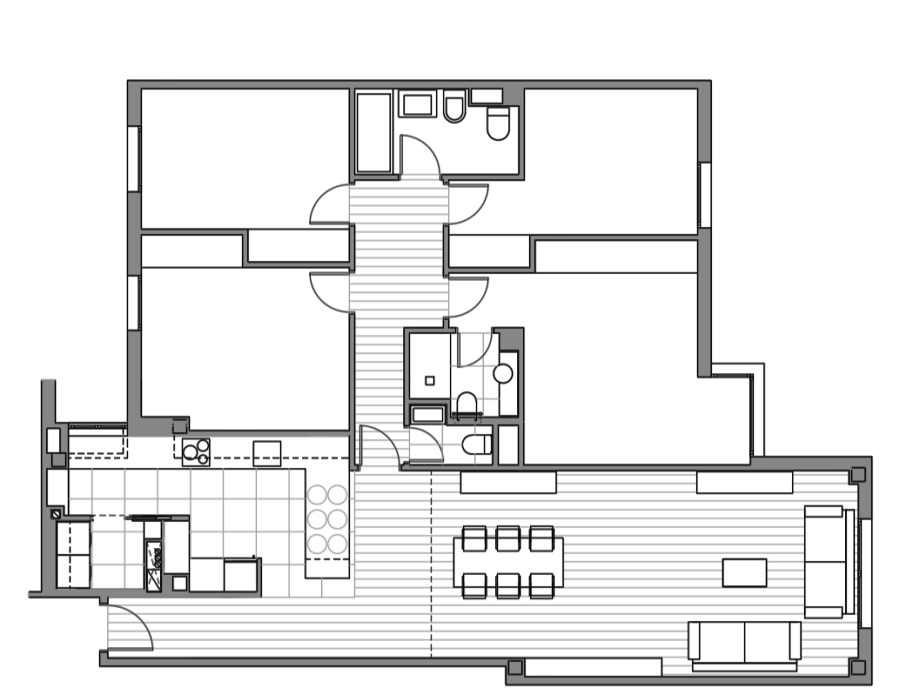
Para los propietarios de esta vivienda, una familia numerosa, era fundamental sacar el máximo rendimiento a cada metro cuadrado.

 

Con este objetivo se integró la cocina en el salón, incorporando además el tendedero y creando un cuarto de lavado independiente.

 

La reforma creó también un aseo de cortesía, reduciendo la superficie del baño principal.

 

El resultado: con una intervención reducida a una zona de la vivienda se consiguió adaptar ésta a las necesidades de sus inquilinos -máxima funcionalidad con un aprovechamiento total del espacio-.

 

La actuación se completó con el lacado de la carpintería de madera de toda la vivienda y con el alisado de paramentos, dando una sensación de reforma integral y sacando el máximo partido a la luz natural.