Puerta del Ángel II

2021

 

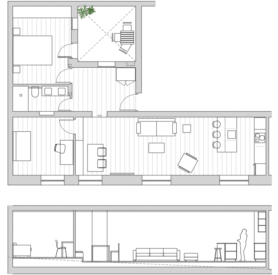
En esta vivienda, en origen un bar, fue decisivo el juego de niveles de suelo para conseguir que todas las estancias quedaran por encima de la rasante de la calle, condición básica para conseguir el cambio de uso a vivienda.

 

El vestíbulo de entrada a la vivienda se sitúa en el centro de la misma, articulando el espacio en dos zonas diferenciadas: una interior, donde se ubican las estancias más privadas; y otra exterior. En el paso a esta zona exterior se sitúa un primer peldaño para elevar el nivel en una gran estancia que incluye cocina, estar y zona de comedor. Un siguiente peldaño da paso a otra pieza ubicada en la parte más alta de la calle. 

 

La vivienda creada está dotada de una gran luminosidad, gracias a los grandes ventanales existentes en la fachada principal. Además la ventana del vestíbulo, que abre al patio interior de la finca, dota a la vivienda de ventilación cruzada.

 

En la intervención realizada se mantuvieron elementos originales, como el muro de carga de ladrillo, donde se recuperó el estado original.

 

ESTADO ORIGINAL