Puerta del Ángel

2018

 

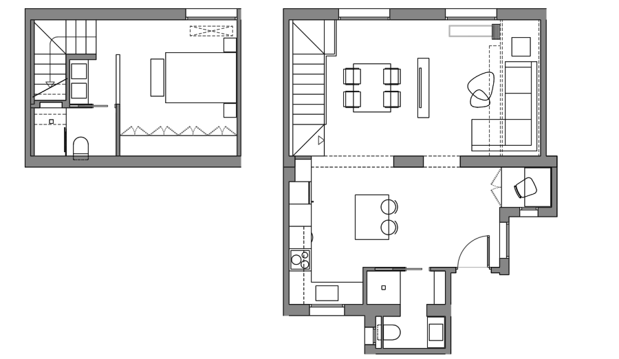
Esta vivienda, en origen un local comercial, se organiza en dos plantas.

 

En la planta alta, se plantea un gran espacio diáfano, donde conviven los usos de cocina, estar, zona de trabajo y un altillo reservado a la lectura o dormitorio ocasional.

En la planta baja se ubican las estancias privadas de la vivienda: dormitorio y baño principal.

 

En la intervención realizada se mantuvieron elementos originales, como la pared medianera de ladrillo, donde se recuperó el estado original.